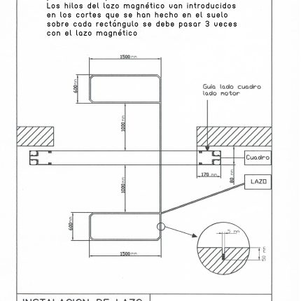
Puerta enrollable rápida




DESCRIPCIÓN
Puerta de Lona Simple / Doble, Con Guías calefactadas, Cámaras de aire entre lonas, recuperación del aire y secado. Temperatura Positiva / Negativa / Túnel
Estructura con Perfileria de Aluminio aleacion 6060 T5 el capotaje frontal de la lona diseñado para evitar acumulacion de hielo. En la lona según la anchura y altura de la misma lleva diferentes refuerzos trasversales. El gramaje de la lona es 1700 gr./m2. y espesor 1,4mm. El automata está concebido para el cierre y apertura de puertas mediante encoder magneticos. La temperatura de trabajo puede alcanzar hasta los -30ºC. La velocidad puede ser de hasta 0,9 m/s . El cuadro electrico lleva piloto destellante y magnetotermico de protecccion. no lleva mirilla y en la parte inferior de la puerta color negro y amarillo para indicar movimiento.
Lona